Chi tiết căn hộ Điển hình
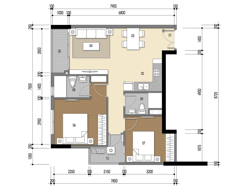
Căn hộ 2PN - 64.86m²

Căn hộ 2PN - 64.86m 3D

Căn hộ 2PN - 64.86m vitri

 
 
  • Block-Tầng
  • Mã căn
  •  
  • A-6>20
  • A06
Thông tin căn hộ
  • Diện tích tim tường
  • 64.86 m²
  •  
  • Lối vào, Phòng khách
    Phòng bếp, ăn
  • 27.86 m²
  •  
  • Lô gia
  • 3.5 m²
  •  
  • Phòng ngủ 01
  • 12.7 m²
  •  
  • Phòng ngủ 02
  • 9.6 m²
  •  
  • Vệ sinh 01
  • 3.7 m²
  •  
  • Vệ sinh 02
  • 3.9 m²
  •  
  • Sân phơi
  • 3.6 m²
  •  
 
0964 355 355
Đặt lịch xem nhà mẫu

Quý khách vui lòng điền đầy đủ thông tin bên dưới để đặt lịch xem nhà mẫu và nhận được thông tin chính thức của chủ đầu tư về dự án Luxgarden và các chương trình khuyến mãi.